14 Braganza, Athy Road, Carlow, Carlow, R93KX64

  • Unconditional Online Auction Sale
  • AMV : €295,000

4/5 bedroomed family home in much sought after area of Carlow Town

Description

Properties rarely come for sale in this much sought after estate. 

No.14 is a very fine house with oodles of further potential 

On the ground floor there is a porch, study(5th bedroom) sitting room, dining room, kitchen, utility and guest wc. 

Upstairs there are 4 bedrooms, master ensuite, bathroom. 

There is a fine sized rear garden and the house benefits from double glazed upvc windows, natural gas central heating and it has been rewired. 

AMV €295,000

FEATURES

Double glaze Upvc windows.

Oil Fired Central Heating

Prime location on the fringes of Carlow town

Fine sized rear garden

Home office which could be used as a 5th bedroom

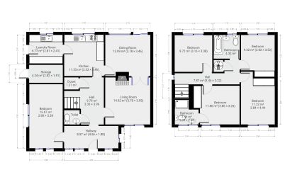
ACCOMMODATION

GROUND FLOOR

Porch:  8.57 m²

Hall:  9.79 m²

Living Room:  14.92 m²

Kitchen:  11.53 m²

Dining Room:  13.09 m²

Utility::  6.77 m²

Study/Bedroom :  15.07 m²

Storage:  4.24 m²

FIRST FLOOR

Bedroom 1:  11.80 m²

Ensuite:  3.46 m²

Bedroom 2:  11.22 m²

Bedroom 3:  9.72 m²

Bedroom 4:  9.32 m²

Bathroom:  4.32 m²

Landing:  7.87 m²

BER No: 114772510

Loading the bidding panel...

Terms & Conditions to bid on this Property

Office Contact

Harry Sothern, REA Sothern (059) 9131218
059 9131218

Make an Enquiry

Submit an enquiry and someone will be in contact shortly.

 
*  
*  
*
*
*

Share