33 Dolmen Mews, Kilkenny Road, Carlow, Carlow, R93 C920

  • Unconditional Online Auction Sale
  • AMV : €110,000
  • Bedrooms: 2

Impeccable 2 bed townhouse close to the banks of the River Barrow

Description

This 2 bedroomed townhouse comes to the market in pristine condition and located on the banks of the River Barrow in a small development just outside Carlow Town
Located on the Kilkenny Road, on the grounds of the Woodford Dolmen Hotel, this property would be ideal for those commuting to Dublin, Kilkenny or Waterford with the M9 motorway intersection being c 5 minutes’ drive making Newlands Cross a mere 40 minute journey in normal conditions.
AMV €110,000

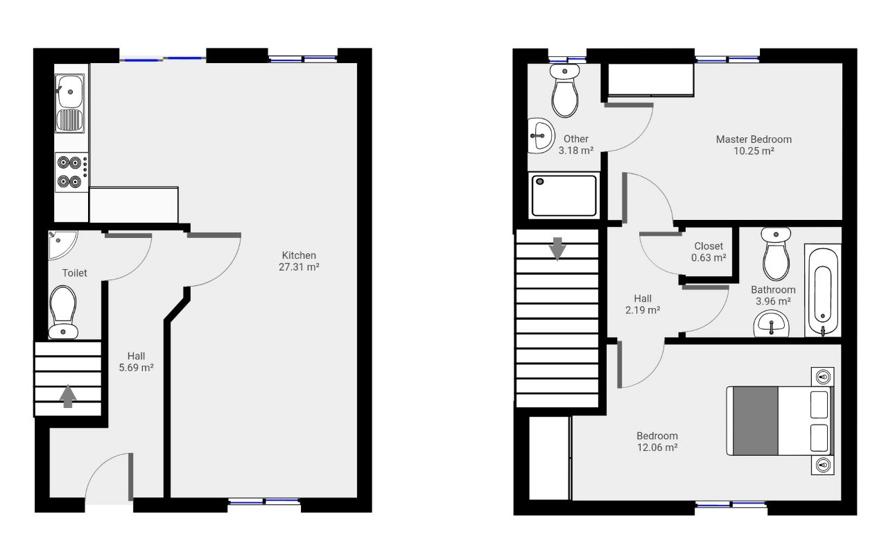
Accommodation

• Entrance Hall: 1.82m x 4.34m
• W.C.: 0.77m x 1.36m
• Sitting Room: 2.78m x 3.12m
• Kitchen/Dining Room: 4.24m x 4.75m
• Hall: 1.77m x 1.19m
• Bathroom: 2.26m x 1.79m
• Hotpress: 0.67m x 0.77m
• Master Bedroom: 2.63m x 4.17m
• Ensuite: 2.57m x 0.85m
• Bedroom 2: 2.57m x 3.77m

Loading the bidding panel...

Terms & Conditions to bid on this Property

Make an Enquiry

Submit an enquiry and someone will be in contact shortly.

 
*  
*  
*
*
*

Share